+38 (048) 740 70 47 Для звонков из Украины Заказать звонок

ua ru Pl

Українська версія сайту

Ви завжди зможете переключити мову сайту, скориставшись перемикачем.

научно-производственное объединение

НПО АГРО-СІМО-МАШБУД

в виде общества с ограниченной ответственностью

Меню

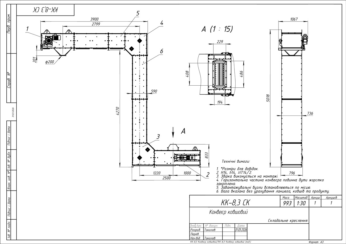
Конвейер ковшовой цепной КК10-8,3

Предназначена для транспортировки зерна и продуктов его переработки. Изготовлен из конструкционной стали с порошковой покраской RAL 7046.

Назначение:

Конвейер ковшовой цепной КК10-8,3 предназначен для транспортировки зерна и продуктов его переработки. Изготовлен из конструкционной стали с порошковой покраской RAL 7046. Высота загрузки/выгрузки 350 / 5 500 мм с возможностью регулировки 50 мм.

Привод со степенью защиты IP54 состоит из мотор-редуктора (Neri Motori, Италия) мощностью 0,75 кВт с частотным преобразователем (INVT). Лента двигается пластмассовыми направляющими. Щит управления на оборудовании. Кнопки стоп, запуск, аварийная остановка, регулировка скорости. Размещен на оборудовании.

Тип ленты Chiorino/ПУ/3М8 U0-U5 НР blue А, корд: KN10U, шеврон: L40 U HP, гофроборт: C-U10/40.

Технические характеристики:

Наименование: КК10-8,3
1. Производительность, до, м3/час 2,0
2. Плотность продукта, т/м3 0,75
3. Длина транспортировки, м 8,3
4. Точек загрузки, шт 1,0
5. Загрузка через шлюзовый питатель, шт 1,0
6. Точек выгрузки, шт 1,0
7. Ширина рабочей ленты, мм. 340
8. Длина рам конвейера, мм. 3 000 (800 / 5 500 / 500)
9. Мощность двигателя, кВт 0,75
10. Общая электрическая мощность оборудования, кВт 0,75
11. Общий вес оборудования, т 1,5

Рекомендуем также:

Конвейер ленточный ТЛБ

Конвейер ленточный предназначен для транспортирования сыпучих зерновых материалов, продуктов их переработки влажностью не более 15% в горизонтальном и наклонном (не более 30 градусов) направлении. Перейти

Конвейер ленточный безроликовый KLB

Предназначены для горизонтального или наклонного перемещения зерна и продуктов его переработки. Перейти

Конвейер винтовой (шнековый) KS

Предназначен для транспортирования сыпучих грузов в горизонтальной и наклонной плоскостях, реже в вертикальной плоскости. Перейти

Конвейер ленточный роликовый KLR

Конвейер ленточный роликовый KLR представляeт собой высокопроизводительное транспортирующее средство непрерывного действия, независимо от того какой продукт транспортируется – агрессивный или чувствительный. Перейти

Не можете определиться с выбором?
Менеджер поможет Вам:

Популярные запросы:

Гречезаводы Заводы "под ключ"
Наверх