+38 (048) 740 70 47 Для дзвінків з України Замовити дзвінок

ua ru Pl

Українська версія сайту

Ви завжди зможете переключити мову сайту, скориставшись перемикачем.

науково-виробниче об'єднання

АГРО-СІМО-МАШБУД

у вигляді товариства з обмеженою відповідальністю

Меню

Машина вимольна МВ

Призначена для відокремлення частинок ендосперму від оболонок сходових фракцій драних систем при переробці зерна пшениці в сортове борошно.

Призначення:

Машина вимольна марки МВ призначена для відокремлення частинок ендосперму від оболонок сходових фракцій драних систем при переробці зерна пшениці в сортове борошно. Застосовується на підприємствах борошномельної промисловості з механічним та пневматичним транспортом.

Машина МВ призначена для експлуатації в районах з помірним кліматом, виготовляється у кліматичному виконанні у категорії 3 за ГОСТ 15150.

Технічні характеристики:

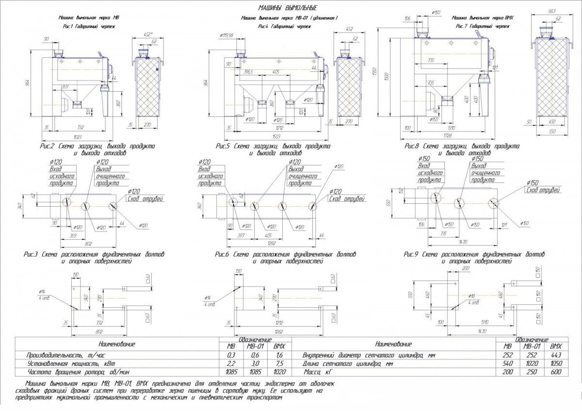
Найменування показників МВ
1. Продуктивність, т/год 0,3
2. Встановлена потужність, кВт 2,2
3. Частота обертання ротора, об/хв 1 085
4. Внутрішній діаметр ситового циліндра, мм 252
5. Довжина ситового циліндра, мм 540
6. Габаритні розміри, мм  
     - висота 964
     - довжина 1 023
     - ширина 452
7. Тнрмін служби, не менше, років 8
8. Маса, кг 200

Пристрій і работа:

Машина МВ складається з: корпусу, ротора з бичами, сітчастого циліндра, приймального патрубка, живильника, лійки, огорожі, натяжного гвинта, опорних підшипників, випускного патрубка.

У корпусі розташований основний орган машини – бичовий ротор. Він має вал, хрестовини та бичі. Ротор встановлено у підшипникових вузлах, закріплених на торцевих стінках корпусу машини.

Обертання ротора машини здійснюється приводом через клинопасову передачу. Натяг клинових ременів проводиться за допомогою гвинтів натяжних.

Машина МВ працює за наступною схемою. Продукт надходить через приймальний патрубок, живильник у робочу зону, де продукту, бичами, розташованими на хрестовинах ротора, надається як обертальний, так і осьовий рух.

Процес відокремлення частинок ендосперму від оболонок відбувається в результаті інтенсивного удару бичів об частинки вихідного продукту в робочій зоні машини. В результаті інтенсивного удару бичів частинки ендосперму відокремлюються від оболонок (висівки) і разом з останніми відкидаються на сітчасту поверхню. Частинки ендосперму просіюються через отвори сита, потрапляють у вирву і далі самопливом виводяться з машини. Висівки йдуть сходом із сита і через випускний патрубок виводяться з машини.

Залежно від конкретного місця встановлення машини в технологічній схемі борошномельного заводу її комплектують одним із трьох видів сит: з отворами Ø 0,75 мм або Ø 1,0 мм або Ø 1,25 мм.

Увага! Якщо чомусь потрібно заміна одного бича 9, то обов'язково необхідно замінити також протилежний бич. По можливості рекомендується замінити повний комплект. Після заміни бичів ротор необхідно динамічно збалансувати.

Для цього включити електроживлення та забезпечити подачу продукту у впускний патрубок.

Увага! Завантаження продукту в подрібнювач допускається тільки за наявності завантажувального бункера заводу-виробника з тим, щоб унеможливити попадання в робочу зону будь-яких сторонніх предметів або рук оператора.

Сітчастий циліндр складається із двох половин, з'єднаних у горизонтальній площині. Циліндр кріпиться на живильнику та внутрішній стінці корпусу машини.

З метою рівномірного зношування поверхні рекомендується в процесі експлуатації повертати сітчастий циліндр на 180°.

Рекомендуємо також:

Новинка

Дежермінатор СІМО ДС-2

Дежермінатор використовують для керованої обробки поверхні зерна: лущення, шліфування і полірування круп, а також для виділення зародка кукурудзи (дежермінація зерен кукурудзи). Перейти

Вальцьовий верстат ВМ-2П

Вальцьовий верстат ВМ-2П призначений для подрібнення зерна і проміжних продуктів розмелювання пшениці і застосовується в складі комплекту обладнання на борошномельних підприємствах зі збільшеним виходом борошна високих сортів. Перейти

Подрібнювач ИС-1

Призначений для подрібнення зерна (пшениця, жито, ячмінь, горох, просо, рис, кукурудза), в процесі його переробки в борошно, крупу, комбікорми і кормосуміші. Подрібнювач застосовується на млинах, крупозаводах, комбікормових виробництвах і кормоцехах. Перейти

Вальцьовий подрібнювач ВПЗ-1000

Вальцьовий подрібнювач (вальцьова дробарка) марки ВПЗ-1000 використовується для подрібнення кормових гранул, зернових (пшениця, кукурудза та ін.), бобових (соя, люпин та ін.) культур у складі ліній по виробництву комбікормів та білково-мінерально-вітамінних добавок. Перейти

Не можете визначитися з вибором?
Менеджер допоможе Вам:

Догори