+38 (048) 740 70 47 Для звонков из Украины Заказать звонок

ua ru Pl

Українська версія сайту

Ви завжди зможете переключити мову сайту, скориставшись перемикачем.

научно-производственное объединение

НПО АГРО-СІМО-МАШБУД

в виде общества с ограниченной ответственностью

Меню

Машина вимольна МВ

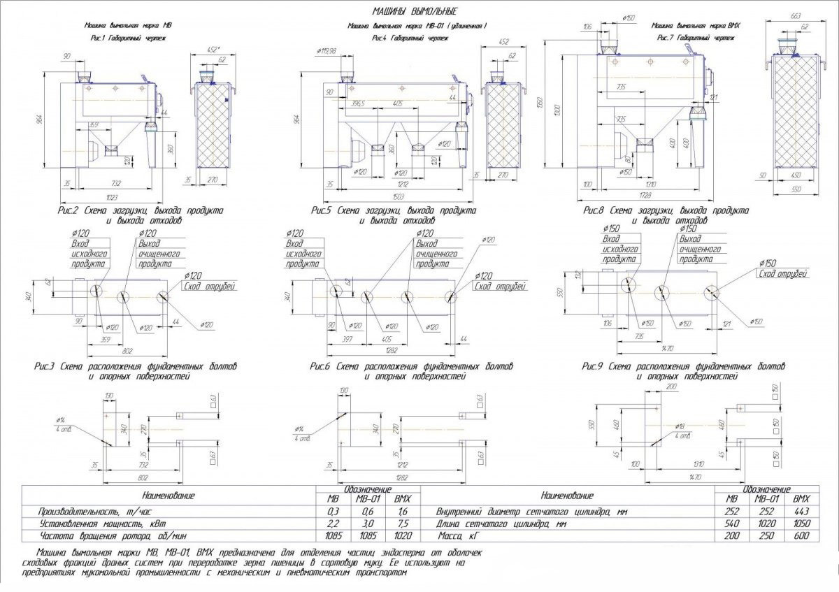
Предназначена для отделения частиц эндосперма от оболочек сходовых фракций драных систем при переработке зерна пшеницы в сортовую муку.

Назначение:

Машина вымольная марки МВ предназначена для отделения частиц эндосперма от оболочек подобных фракций изорванных систем при переработке зерна пшеницы в сортовую муку. Применяется на предприятиях мукомольной промышленности с механическим и пневматическим транспортом.

Машина МВ предназначена для эксплуатации в районах с умеренным климатом, производится в климатическом исполнении в категории 3 по ГОСТ 15150.

Технические характеристики:

Наименование показателей МВ
1. Производительность, т/ч 0,3
2. Установленная мощность, кВт 2,2
3. Частота вращения ротора, об/мин 1 085
4. Внутренний диаметр ситового цилиндра, мм 252
5. Длина ситового цилиндра, мм 540
6. Габаритные размеры, мм  
     - высота 964
     - длина 1 043
     - ширина 452
7. Срок службы не меньше, лет 8
8. Масса, кг 200

Устройство и работа:

Машина МВ состоит из: корпуса, ротора с бичами, сетчатого цилиндра, приемного патрубка, питателя, лейки, ограждения, натяжного винта, опорных подшипников, выпускного патрубка.

В корпусе расположены основной орган машины – бичевой ротор. Он имеет вал, крестовины и бичи. Ротор установлен в подшипниковых узлах, закрепленных на торцевых стенках корпуса машины.

Вращение ротора машины осуществляется приводом через клиноременную передачу. Натяжение клиновых ремней производится с помощью винтов натяжных.

Машина МВ работает по следующей схеме. Продукт поступает через приемный патрубок, питатель в рабочую зону, где продукту, бичами, расположенными на крестовинах ротора, предоставляется как вращательное, так и осевое движение.

Процесс отделения частиц эндосперма от оболочек происходит в результате интенсивного удара бичей частицам исходного продукта в рабочей зоне машины. В результате интенсивного удара бичей частицы эндосперма отделяются от оболочек (отруби) и вместе с последними отбрасываются на сетчатую поверхность. Частицы эндосперма просеиваются через отверстия сита, попадают в воронку и дальше самотеком выводятся из машины. Отруби идут сходом из сита и через выпускной патрубок выводятся из машины.

В зависимости от конкретного места установки машины в технологической схеме мукомольного завода ее комплектуют одним из трех видов сит: с отверстиями Ø 0,75 мм или Ø 1,0 мм или Ø 1,25 мм.

Внимание! Если почему-то требуется замена одного бича 9, то обязательно необходимо заменить также противоположный бич. По возможности рекомендуется заменить полный комплект. После замены бичей ротор необходимо динамически сбалансировать.

Для этого включить электропитание и обеспечить подачу продукта во впускной патрубок.

Внимание! Загрузка продукта в измельчитель допускается только при наличии загрузочного бункера завода-изготовителя с тем, чтобы исключить попадание в рабочую зону любых посторонних предметов или рук оператора.

Сетчатый цилиндр состоит из двух половин, соединенных в горизонтальной плоскости. Цилиндр крепится на питателе и внутренней стенке корпуса машины.

В целях равномерного износа поверхности рекомендуется в процессе эксплуатации поворачивать сетчатый цилиндр на 180°.

Рекомендуем также:

Новинка

Дежерминатор СІМО ДС-2

Дежерминатор используют для управляемой обработки поверхности зерна: шелушения, шлифования и полировки круп, а также для выделения зародыша кукурузы (дежерминация зерен кукурузы). Перейти

Вальцовый станок ВМ-2П

Вальцовый станок ВМ-2П предназначен для измельчения зерна и промежуточных продуктов размола пшеницы и применяется в составе комплекта оборудования на мукомольных предприятиях с увеличенным выходом муки высоких сортов. Перейти

Измельчитель ИС-1

Предназначен для измельчения зерна (пшеница, рожь, ячмень, горох, просо, рис, кукуруза), в процессе его переработки в муку, крупу, комбикорма и кормосмеси. Измельчитель применяется на мельницах, крупозаводах, комбикормовых производствах и кормоцехах. Перейти

Вальцовый измельчитель ВПЗ-1000

Вальцовый измельчитель (вальцовая дробилка) марки ВПЗ-1000 используется для дробления кормовых гранул, зерновых (пшеница, кукуруза и др.), бобовых (соя, люпин и др.) культур в составе линий по производству комбикормов и белково-минерально-витаминных добавок. Перейти

Не можете определиться с выбором?
Менеджер поможет Вам:

Популярные запросы:

Гречезаводы Заводы "под ключ"
Наверх