+38 (048) 740 70 47 Для звонков из Украины Заказать звонок

en ua ru Pl

Українська версія сайту

Ви завжди зможете переключити мову сайту, скориставшись перемикачем.

научно-производственное объединение

НПО АГРО-СІМО-МАШБУД

в виде общества с ограниченной ответственностью

Меню

Капитальный ремонт блока гидротермической обработки зерна

Один из крупнейших комбинатов хлебопродуктов в Хмельницкой области 29 лет назад провел полную реконструкцию своих технологических линий оборудованием НПО «АГРО-СІМО-МАШБУД» на гречезаводе производительностью 220 т/сут зерна.

04.09.2025

капитальный ремонт блока гто

Устойчивое развитие агропродовольственного сектора Украины является залогом экономической стабильности государства. Украинский агробизнес за прошедшие три года, несмотря на серьёзные вызовы, показал чудесную трудоспособность в тяжелых условиях наших реалий. Но есть важное правило – нельзя останавливаться! Именно поэтому многие перерабатывающие предприятия аграрной сферы, а среди них - локомотивные предприятия зернопереработки не стоят на месте. Более того, рассматривают и внедряют стратегию развития – модернизацию и обновление оборудования, расширение ассортимента, внедрение новых направлений.

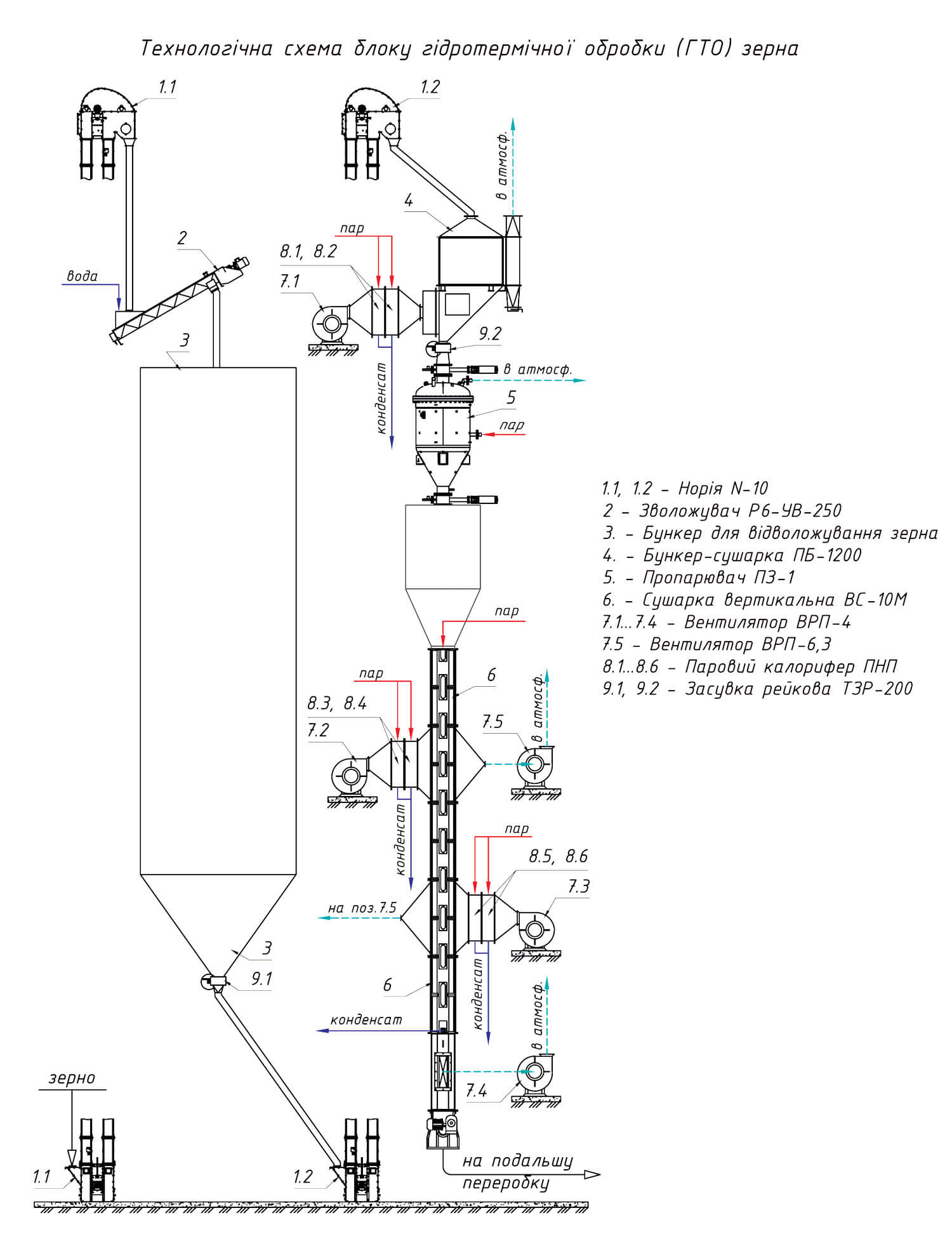
Один из крупнейших комбинатов хлебопродуктов в Хмельницкой области 29 лет назад провел полную реконструкцию своих технологических линий оборудованием НПО «АГРО-СІМО-МАШБУД» на гречезаводе производительностью 220 т/сут зерна. А сегодня, спустя годы, компания «АГРО-СІМО-МАШБУД» приступила к капитальному ремонту части оборудования вышеупомянутого крупозавода, а именно – линии гидротермической обработки гречки. На первом этапе капитального апгрейда – поставка новых Пропаривателей марки ПЗ-1. Часть пропаривателей уже отгружена и в настоящее время проводится их монтаж при авторском надзоре специалистов «АГРО-СІМО-МАШБУД».

Качество и выход гречневой и других видов круп в определяющей мере зависит от качества гидротермической обработки зерна паром:

    • Выход крупы увеличивается на 8-12% в зависимости от перерабатываемого зерна.
    • Ядро зерна становится в 4-6 раз более прочным.
    • Цвет крупы становится более равномерным.
    • Крупинки готового продукта не слипаются во время приготовления, крупа быстрее варится, становится более ароматной, воздушной и рассыпчатой.

Напомним, что гречневая крупа имеет высокую питательную ценность, обладает антиоксидантными свойствами, способствует снижению холестерина. Гречка содержит витамины группы А, В, С, Е, белки и важные жиры. Она также богата важными минералами, такими как цинк, магний, фосфор. В составе гречки присутствуют 8 незаменимых аминокислот: триптофан, лизин, метионин, валин, треонин, лейцин, изолейцин, фенилаланин.

Таком образом, после обработки паром, зерно сохраняет более 80% витаминов и минеральных веществ, которые обычно теряются в результате обычных методов очистки (при удалении внешней оболочки и полировки).

«АГРО-СІМО-МАШБУД» не только активно следит за тенденциями в области технологии переработки зерна, но по многим позициям является флагманом в этой сфере, что также позволяет компании сохранять высокий уровень конкурентоспособности.

Фотогалерея

Остались вопросы?
Подписаться на новости

Свежие новости

Поздравляем Вас со светлым и величественным Праздником Пасхи!
02.04.2026

Поздравляем Вас со светлым и величественным Праздником Пасхи!

Подробнее
Переработка вместо экспорта: новые крупозаводы в Украине
30.03.2026

Переработка вместо экспорта: новые крупозаводы в Украине

Подробнее
Украинская компания выиграла тендер на поставку в Германию линий переработки гречки и чечевицы
24.03.2026

Украинская компания выиграла тендер на поставку в Германию линий переработки гречки и чечевицы

Подробнее
Оптовая партия украинского технологического оборудования направилась в Турцию
27.02.2026

Оптовая партия украинского технологического оборудования направилась в Турцию

Подробнее

Популярные запросы:

Гречезаводы Заводы "под ключ"
Наверх
85