+38 (048) 740 70 47 Для дзвінків з України Замовити дзвінок

en ua ru Pl

Українська версія сайту

Ви завжди зможете переключити мову сайту, скориставшись перемикачем.

науково-виробниче об'єднання

АГРО-СІМО-МАШБУД

у вигляді товариства з обмеженою відповідальністю

Меню

Капітальний ремонт блоку гідротермічної обробки зерна

Один із найбільших комбінатів хлібопродуктів у Хмельницькій області 29 років тому провів повну реконструкцію своїх технологічних ліній обладнанням НВО «АГРО-СІМО-МАШБУД» на гречезаводі продуктивністю 220 т/добу зерна.

04.09.2025

капітальний ремонт блока гто

Стійкий розвиток агропродовольчого сектору України є запорукою економічної стабільності держави. Український агробізнес за три роки, незважаючи на серйозні виклики, показав чудову працездатність у важких умовах наших реалій. Але є важливе правило – не можна зупинятися! Саме тому багато переробних підприємств аграрної сфери, а серед них - локомотивні підприємства зернопереробки не стоять на місці. Більше того, розглядають та впроваджують стратегію розвитку – модернізацію та оновлення обладнання, розширення асортименту, запровадження нових напрямків.

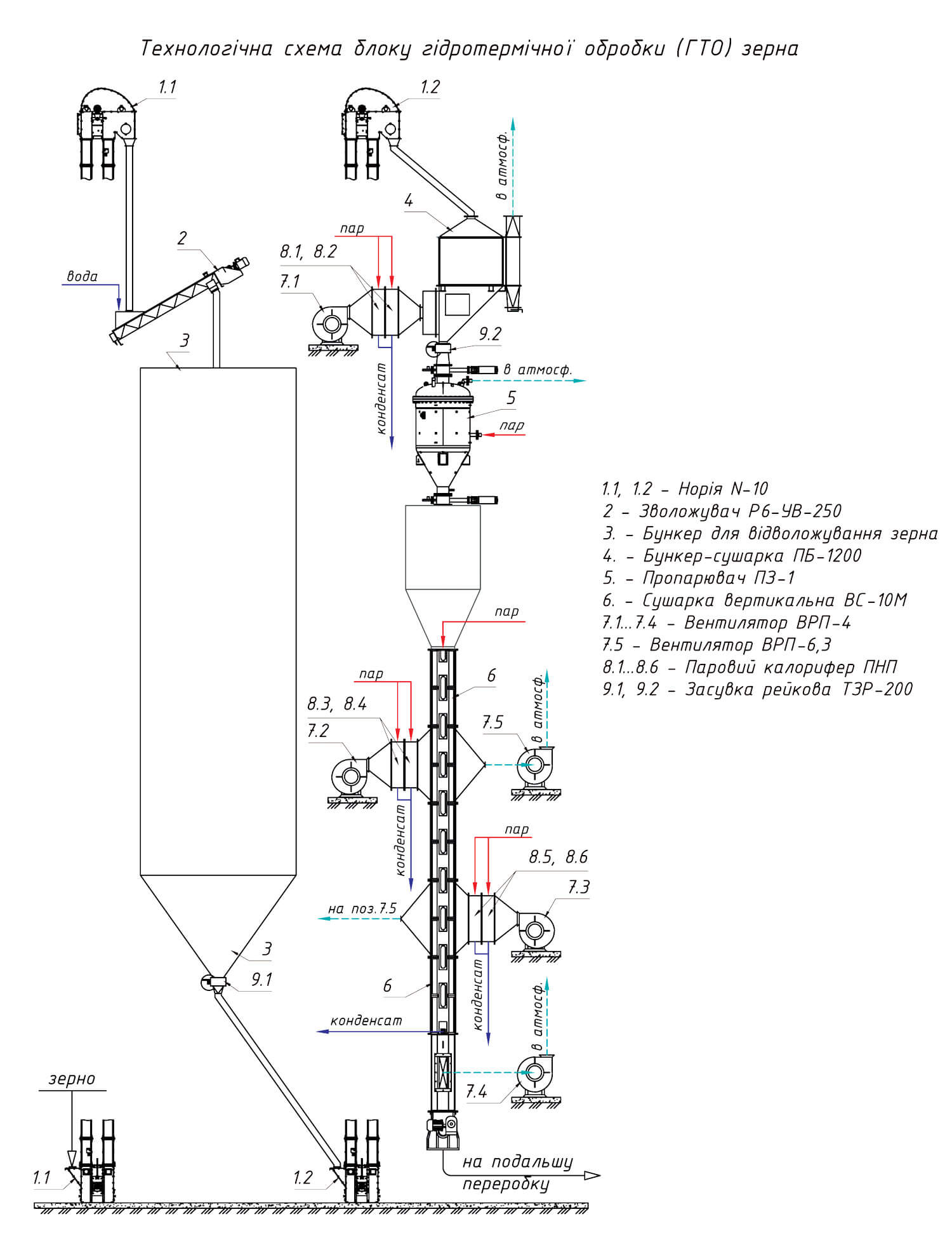
Один із найбільших комбінатів хлібопродуктів у Хмельницькій області 29 років тому провів повну реконструкцію своїх технологічних ліній обладнанням НВО «АГРО-СІМО-МАШБУД» на гречезаводі продуктивністю 220 т/добу зерна. А сьогодні, через роки, компанія «АГРО-СІМО-МАШБУД» розпочала капітальний ремонт частини обладнання вищезгаданого крупозаводу, а саме – лінії гідротермічної обробки гречки. На першому етапі капітального апгрейду – постачання нових Пропарювачів марки ПЗ-1. Частина пропарювачів вже відвантажена і наразі проводиться їх монтаж за авторським наглядом фахівців «АГРО-СІМО-МАШБУД».

Якість і вихід гречаної та інших видів круп визначальною мірою залежить від якості гідротермічної обробки зерна парою:

    • Вихід крупи збільшується на 8-12% залежно від зерна, що переробляється.
    • Ядро зерна стає в 4-6 разів міцнішим.
    • Колір крупи стає більш рівномірним.
    • Крупинки готового продукту не злипаються під час приготування, крупа швидше вариться, стає більш ароматною, повітряною та розсипчастою.

Нагадаємо, що гречана крупа має високу поживну цінність, має антиоксидантні властивості, сприяє зниженню холестерину. Гречка містить вітаміни групи А, В, С, Е, білки та важливі жири. Вона також багата на важливі мінерали, такі як цинк, магній, фосфор. У складі гречки є 8 незамінних амінокислот: триптофан, лізин, метіонін, валін, треонін, лейцин, ізолейцин, фенілаланін.

Таким чином, після обробки парою, зерно зберігає понад 80% вітамінів та мінеральних речовин, які зазвичай губляться в результаті звичайних методів очищення (при видаленні зовнішньої оболонки та полірування).

«АГРО-СІМО-МАШБУД» не лише активно стежить за тенденціями у галузі технології переробки зерна, але й за багатьма позиціями є флагманом у цій сфері, що також дозволяє компанії зберігати високий рівень конкурентоспроможності.

Фотогалерея

Залишилися питання?
Підписатись на новини

Свіжі новини

Вітаємо Вас зі світлим і величним Святом Великодня!
02.04.2026

Вітаємо Вас зі світлим і величним Святом Великодня!

Подробнее
Переробка замість експорту: нові крупозаводи в Україні
30.03.2026

Переробка замість експорту: нові крупозаводи в Україні

Подробнее
Українська компанія виграла тендер на постачання до Німеччини ліній переробки гречки та сочевиці
24.03.2026

Українська компанія виграла тендер на постачання до Німеччини ліній переробки гречки та сочевиці

Подробнее
Оптова партія українського технологічного обладнання вирушила до Туреччини
27.02.2026

Оптова партія українського технологічного обладнання вирушила до Туреччини

Подробнее
Догори
142